• Accueil
  • L'équipe
  • Nos réalisations
  • Nos projets
  • On parle de nous
  • Contact
Travaux en cours - Livraison des lots bruts rentrée 2016

Plans des façades

Façade Nord Ouest

Façade Sud Est

Façade Sud Ouest

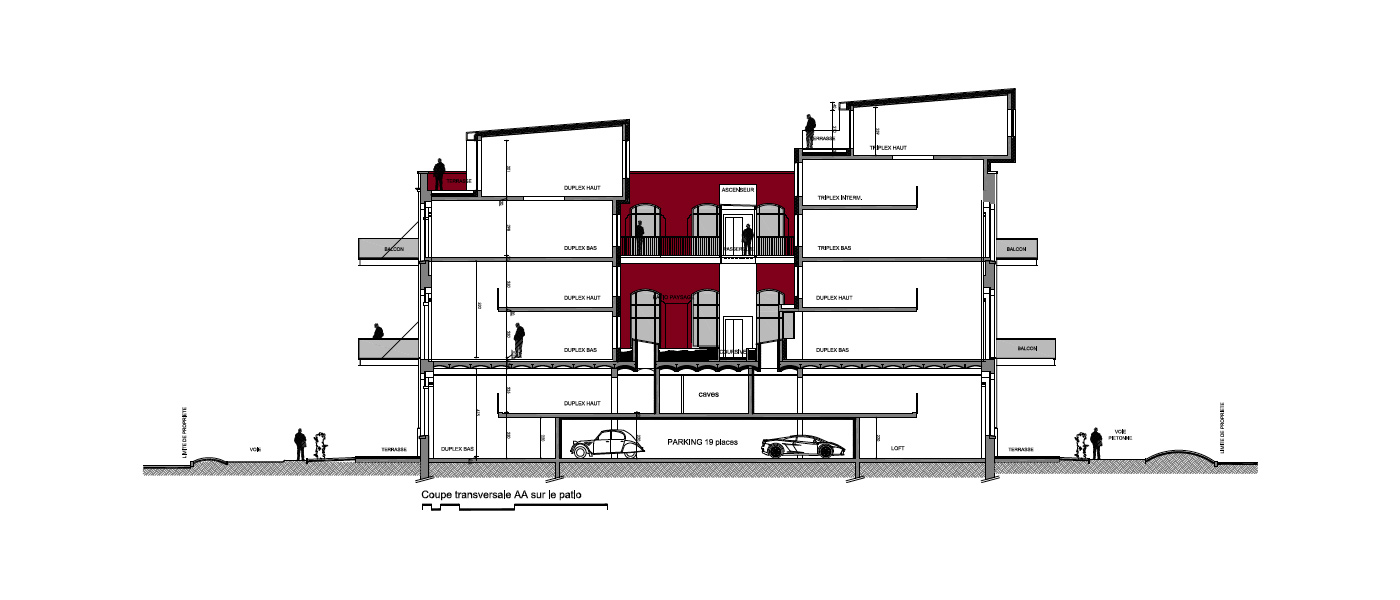
Coupe transversale sur le patio

  • Le lieu
  • Le Projet
    • Tout savoir
    • Vues 3D
    • Plans
      • Façades
      • Lofts en rez-de-chaussée
      • Lofts au 1er niveau
      • Lofts au 2ème niveau
    • Vivre dans un loft
    • Un projet Éco-pensé
    • 12 belles raisons d'habiter à l'Atelier
    • Aller à l'Atelier
  • Combien ça coûte ?
  • J'habite dans un loft
    et j'aime ça !
  • Aménager un loft
    styles & inspirations

L'Atelier est une réalisation Loft Company

  • Mentions légales